你去麦当劳单点了一个汉堡,人家肯定就只给你一个汉堡,同样,你只买了单张的效果图,设计师肯定只会给你效果图,除非你买的的汉堡套餐,里面除了汉堡,还有可乐鸡翅啥的。
今天正好趁着话题,和大家聊聊汉堡套餐里,啊呸,设计服务中,设计师通常会提供些什么图纸,以及其他的服务内容。
设计师提供的图纸,总的来说可以分为两个部分:效果图和施工图。
效果图其实就是设计师根据你的装修需求,出的可视化的装修方案。
施工图是具体的施工方案,主要是给工人看的。
一般设计流程:设计师量房——出平面布局图——出效果图——出施工图。
平面布局图通常是用CAD来画,它也属于施工图,但要最先出,因为效果图要根据平面布置图来做。

业主通过这个图,可以清晰的了解到,家里是如何布局的,每个空间又是如何利用的,还有家具家电的摆放以及方位。
其实很多业主拿到这个图也是懵的,因为平面布置图只能看出房间怎么布置的,具体地面用地砖还是地板,什么颜色什么花纹,家里整个软硬装色彩搭配这些具体的东西,业主是没有概念的。
这个时候我通常会出一份PPT的概念设方案。

里面会放一些参考图,这样能让客户对家里最后呈现的色彩风格,以及硬装效果有一个大致的了解,这之后再做效果图,能避免后期重复改稿。
等这个概念方案通过以后,就可以开始做效果图了。
效果图根据设计师习惯不同,有3dmax的,也有su的。

效果图的制作通常是最费时间的。
前期要先建模,然后搭配家具软装模块、调整软装材质细节纹理、调整灯光、渲染。


效果图的制作,如果熟悉软件操作的话其实并不难,难的是调整、搭配,而且要渲染成大家看到的效果图也非常费时间。
当然,也有简单的效果图方案,比如用酷家乐做,但它最后呈现的效果和质感会大打折扣。

效果图定稿以后,就可以开始做施工图了。
为什么一定要先做效果图后做施工图呢?
因为效果图是业主心中家的具象化,吊顶用什么材质、中央空调管道怎么走、灯怎么布置、什么地方需要增加点位...都能通过效果图直观的看到,施工图纸就是给工人看的,具体的施工方案指导。
施工图数量很多,根据设计改造方案复杂程度,一般平层户型大约在20—30张左右,像一些别墅之类的大户型,图纸起码有40—60张。

里面包含有:材料表、原始平面图、拆除墙体图、新建墙体图、平面布置图、尺寸定位图、立面索引图、地坪布置图、天花布置图、天花定位图、灯具定位图、开关控制图、机电点位图、弱电点位图、冷热水点位图、立面图。
这个图纸完成以后,就可以打印出来送到工地,工人按图施工。
设计师提供的图纸大概就是这些,但设计师的工作远远不止这些。
所以除了图纸,设计师还需要给业主提供:软装采购清单、灯具采购清单,还有最重要的,施工+主材预算。


软装和灯具清单,设计师需要根据效果图还有客户预算,在网上找相近款式(一般很难找到一模一样的)业主不一定会照着设计师给的链接买,但有了款式、颜色、尺寸以及价格的参考以后,哪怕是去线下实体店买,也会方便很多。

主材预算清单,其实说白了,就是给业主分配怎么花钱,其实在前期画图纸的时候,设计师已经在做这个事了,只是最后再用表格细化呈现出来。
要买哪些主材、买多少个、买什么价格区间的都详细的列出来,业主只要照着这个规划好的价格区间买,基本就不会超预算。
以上都是看得见的工作,其实设计师还有很多看不见的工作。
比如现场交底
虽然有图纸,但工地现场不是模型,工人也不是机器人,甚至有的工人就不看图纸,所以设计师必须去现场,把图纸上的东西再确认交代一遍。
除了交底要去,平时工人施工碰到意外情况,设备商家安装设备碰到问题,图纸上没有,电话里说不清楚的,设计师也要跑现场。
再比如节点验收
施工的重要节点,设计师得去现场确认施工的准确性。
再再比如主材采购
像一些定制类的主材,业主通常会选择线下购买,很多业主不懂,怕被坑,也拿不准要买的款式和花色,设计师就得陪着去建材市场选购。
总之,如果你单独买效果图,那设计师就只是卖效果图而已,效果图做完银货两讫,如果是买设计师服务,那就不单单是效果图,还有很多其他服务。
一般标准的整套CAD图纸是有:原始结构图+打墙图+砌墙图+平面布置图+家具尺寸图+地面铺贴图+天花布置图+灯位尺寸图+开关布置图+插座布置图+水路图+配电系统图+立面索引图+各各造型空间的立面图(具体张数根据设计而定)+立面及天花局部的剖面及大样图(具体张数根据设计而定)。
判断一个设计师专不专业的标准并不是他给你的案例图有多好看、多有设计感,而是他能不能做出一份标准的施工图。
一份专业的施工图包含以下几个部分:平面图、立面图、节点图以及效果图。
下面我们就以一份实地案例,来给大家详细说说一份专业的施工图到底长啥样吧~

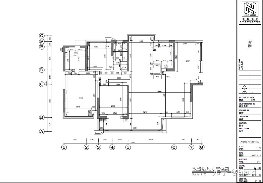
很多人认为平面图就只是原始图+改造后的平面图,而标准的施工图远远不止这些。其实一份专业的施工图,会做到不懂装修的人都能看懂的程度,拿到手就能开工。就我拿到手的案例来说,光是平面图就有十几张。
定位图
#原始和改造后的定位图
除了原始和改造后的平面图之外,还加上了定位图,顾名思义,定位就是“卡点”,就是将每一面墙的长宽高都进行了具体尺寸的标注,用准确的数字来将整个房子的具体样貌展现出来,也给后面装修和购买家居用品提供了最精确的参考。



#家具定位图
根据改后布置图,将家具的占地尺寸在图中定位标注出来,客户可以直接根据这张家具点位图去购买相同占地尺寸的家具了,不用再自己拿个卷尺到处量来量去,可能最后还发现有误差。


#灯具定位图
灯具定位图也是一样的,在图上标注出来每一个灯摆放的位置和距离,还在旁边详细地标注了不同灯具的图例。


#灯具连线图
灯具连线图仔细地写好了哪个开关对应了哪些灯。

?布置图
改造后的平面布置图是一定不能少的,交代了各个区域的功能,并且进行了整个动线规划。

地坪布置图详细地交代了瓷砖地板的铺贴位置,还把地漏的位置,找坡也准确地标注在了图中。


天花布置图中含有吊顶、窗帘盒,并且还有具体的刷白指南。

点位图
像插座和水路这块就需要点位图来进行布局了,在图中标注出了插座的高度和大概位置(具体的左右位置要根据具体情况来判定),在水路图上标注出了各个给水管和排水管的大小和高度,这样在购置材料和施工的时候能够更加省时省力。




墙体拆改图
在设计初期,整个房型会根据客户的需求会有一些户改变动,所以墙体拆改图仔地将拆改的墙都标注出来,能让施工方更加准确地去操作。

由于平面图只能展现俯视角度的情况,没办法看到更多的细节,这时候立面图就出场了!立面图是容易被忽略掉的图纸,很多设计师,一句话——现场定。忽略了立面图,说好听点,只是稍微偷了个懒,说难听点,就是不专业,不负责。

在立面图部分第一张就是立面图索引,在房间里每一个不同角度的面和墙都给了一个索引,如果想看哪一面,直接根据索引跳到对应的部分就好了。

举例:比如说我想找这个位置的立面图,上面标注的是编号:ID-61-03,对应的是01,那么我就往后找对应的编号就ok啦~



立面图上清楚地画着需要摆放或者定制的家具和尺寸,还有家具的材料和质地,包括室内门等的尺寸都一清二楚。



同样的,在厕所的立面图中,有马桶和洗漱台等的具体尺寸。

节点图主要是进行各个重要节点的剖析,比如说定制橱柜的直角区域,石材或者木材需要用多厚的,管道需要预留多少……节点图也是很多不专业的设计师偷懒的部分,他们只会告诉你:根据现场情况来定。但是细节决定成败,细节上的东西一旦出错就很有可能没办法挽救整个局面了。

节点索引图和上面的立面索引图是相似的,查找方法和上面一样,在这里就不过多去赘述了。


我知道大家最喜欢看的就是效果图了,效果图也是看起来最爽的,没有七七八八的数据,也不用去想象各种实景,直接了当地就可以看出自己家里装修完成是什么样子。
效果图和施工图的结合,而不是酷家乐式的白痴渲染,或者不渲染的SU,就是看个样子。比如成都这个地方,这种3ds建模的效果图,一张卖你1000块钱一张。设计团队根本不会自己建模,渲染,全部外包给专门的效果图公司做。说实话,我们也不知道这件事,对业主来说,是好事还是坏事呢。


这里需要提一下的是,靠谱的全案设计团队是会全程跟进到你房子装修完成的那一刻,而不是说硬装完了就不管了,后期的家具软装,也都是会给购买建议的,不用担心自己装出来或者买到的家具和效果图上面差很多。

最后,希望大家注意,很多人往往都会被很多设计师发出来的最终案例图而迷惑了,连施工图都没有看,就去签了合同,判定一个设计师到底专不专业,施工图才最能体现其水平,案例图都是其次,希望大家把重点放好,不要丢了西瓜捡芝麻。
对于普通业主而言,装修可谓是一辈子的人生大事,很多人一辈子可能也就经历一两次的装修。一些对居住环境要求比较高的人,还会专门花钱去请设计师来为自家装修出谋献策,做一套设计方案后再开始装修。而在请设计师的时候,很多业主没有经验,容易遇到坑爹的设计师。

为了让大家避坑,设计姐来给各位介绍一下“花钱请设计师,需要有哪些服务”,免得请来的设计师太敷衍,设计费花了,却对自己装修没有什么帮助。
很多人一辈子就装修一次,说经验真谈不上;而花钱请设计师的人,更是少之又少,毕竟不是谁都对居住环境有较高的要求的。所以很多装修小白想请设计师,却又无从下手,也不知道该找什么样的设计师才靠谱。下面,设计姐根据自己的设计工作经验,整理了我日常设计的服务内容,给大家科普一下请设计师的时候,需要提供哪些服务。各位打算请设计师的话,可以了解一下设计师是否会提供以下服务再做决定。如果新入行的设计师们,也可以参考一下我的设计服务内容,以便为业主提供更好的设计体验。
平面布置方案,这个是对户型空间利用的一个设计,一个合理的家具布置方案,可以避免后期的居住、使用的不便。比如尺寸上床尾宽度是否有60cm、衣柜的深度是否有55cm......,布置上是否有充足的收纳空间,空间设计上是否能满足一家人的居住需求。

▲平面布置方案。设计师专业不专业,往往在平面布置方案上有很大的差别,一个专业的设计师,可以让空间利用更加合理。尤其是在一些户型改造上,比如二房改三房、三房改四房的情况,比如下面这个我们团队的二房改三房的方案。

▲原始户型分析。

▲业主的改三房方案:业主自己的方案虽然实现了二房改三房,并没解决户型的硬伤,反而让家庭的活动中心——客餐厅成为了暗厅,极度不适。

▲权衡了主人设计需求与家庭生活习惯,我们提出了以上改进方案:重新规划了客餐厅之间的格局,解决了玄关的尴尬,同时以室内窗与新风系统大程度改善了采光与通风问题,而卫生间也是采用了四分离的设计,把如厕、洗手盆、洗衣区、淋浴区分开,避免早上一人上厕所,全家人排队的囧境。“搬家师”就是往空间里堆家具,而设计师却是在布置家具的同时,还考虑着空间利用是否合理,布置是否舒适。
在确定了平面布置方案的基础,还要出一些主要空间的效果图。效果图主要是用来确定设计氛围是否符合自己的审美,免得装修出来的造型、墙面地面材质与颜色不搭配。一般装修公司是只出客餐厅的效果图,如果要求比较高,还是建议多出几张效果图会比较稳妥。反正设计姐的效果图,一般都是5张以上的,这样无论是客餐厅,还是主人房与儿童房,都能兼顾到。

▲设计效果图。
如果说平面布置方案是灵魂,那么效果图就是皮囊,而施工图则是设计方案的骨架。效果图就是看个样子,如果设计师只给效果图,没有施工图的话,装修的时候根本就做不出这样的效果图的。而施工图上的尺寸比例、所用的材料、施工的工艺细节要求,才是装修工人干活时候要参考的!so,请的设计师只给效果图,那么投诉就对了!

▲一套完整的施工图包括平面与立面,一般是有50张图左右。在平面上,施工图有:平面方案布置图,拆墙图、砌墙图,家具尺寸图,地面铺贴图,天花造型放线图,灯具布置放线图,开关控制图,插座布置图,冷热水布置图等等。
▲有拆墙图,装修打拆的时候才知道要拆哪些地方、拆多少;有砌墙图,装修砌墙的时候,才知道哪些地方要砌墙、砌墙尺寸是多少。其他平面布置图同理。而立面上,施工图有:立面背景图、造型剖面大样图等墙面设计施工图,图纸上要标注清楚尺寸比例、每个部位使用的材料,一些独特的造型,还有有施工大样图给工人做工艺参考。

▲立面施工图,标注了立面(包括墙面天花)的所用材料、尺寸比例,这样装修才不会做出一个比例不协调、或风格不和谐的电视墙。
施工图是给工人看怎么做的,而主材清单则是给自己或工人怎么买主材的。比如地砖、木地板用什么颜色纹理、尺寸大小、是哑光还是亮光,都是要在主材清单上列出来。

▲主材清单表。有了主材清单,买材料可以对图选材,免得买的材料不对,装修出来的效果不好。

▲对着主材表的颜色纹理,买主材的时候就可以对图选购。
装修分为硬装与软装,硬装是墙面、天花、地面这些基础装修;而软装则是灯具、家具、饰品等搭配。如果选择的设计是包括软装设计的话,或是精装房请的是软装设计,还需要设计师提供一份软装采购清单。

▲软装搭配图。

▲软装采购清单,列出软装方案中各个物件的尺寸规格、颜色纹理,以及对应品牌或购买渠道。
如果是线下设计师,一般就是每个工种开工的时候,到现场跟工人交底,交待一些注意事项。

▲这是设计姐在跟泥工师傅定位砌墙的位置。如果是比较偏远的地区,找不到比较好的设计师,可以请线上设计师,线上设计师无法到现场的,则要提供在线的指导与跟进服务,包括微信、电话等方式。

▲在线设计,施工遇到问题,要随时微信或电话与设计师沟通。
//2、业主与设计师的心态//
①负责的设计师
在走心的设计师心目中,对于设计的态度是:这是业主的房子,但同时也是我的作品,我要跟业主一起好好地去雕琢它;为业主营造出实用、美观、温馨的居住氛围,同时也让我的作品能够完美呈现。

②不负责的设计师
效果图喜欢吗?喜欢就行了!怎么施工你自己看着办吧!所以遇到设计只给效果图的设计师,基本上就不用考虑了吧!说难听点,只给业主效果图就算完事了,那业主自己网上找个图片对着装不是更香?花钱请你这个设计师有什么用?

?③业主
在多少业主的心目中,这个设计是我的家,在设计师给我方案后,我要按照这个方案装修的,装修后我与家人是要在这里住上十几年甚至一辈子的,一定定要设计好。

最后再总结一下:作为设计师,千万不要用敷衍的方案去应付,因为那个方案装的是一个家庭的未来生活与愿望。除非你就是混日子的,那就求你赶紧转行吧,别祸害业主的新房子,糟蹋设计行业。作为业主,请设计师的时候,一定要了解清楚设计服务的内容,免得给了设计费给你一堆效果图,让你自己看着效果图装修。这样施工时,尺寸比例、用材搭配全都是工人的事了,还有必要请设计师吗?
首先,单就问题而言,我先给一个回答。但是我觉得大部分关注这个问题的小伙伴们,大概真的想看到的回答应该都是:"房子装修时,设计师需要给业主提供哪些服务"吧?所以,稍后,我会给大家详细说一下这一部分的内容。
第一个回答:
我有仔细的去分析题主的这个问题,背景是房屋装修,请设计师单独出效果图,然后问题是"设计师需要提供哪些图纸"?其实这个问题不是特别明确,因为不知道题主是和装饰公司签了设计合同,只是效果图这一部分拿出来给设计师单独做,然后问设计师除了效果图还应该提供什么图纸?还是说题主只是让设计师出效果图,然后问效果图应该出的内容?这两者差距还是特别大的。
那第一种情况呢,也就是我后面着重要讲的内容。在这里我先回答下第二种情况。请设计师单出效果图应该出哪些图纸?
现在做效果图一般情况下可以分为两种,第一种:按张数付费,这种很好理解,就是业主或者设计师指出做哪些空间,然后确认下数量,乘以单价。最后设计师提供的当然就是你们之前确定好的那几张效果图。这种呢?就像出去买东西,你给了几张的钱,那就做几张。
还有一种是按套收费,也就是把整个房屋作为一个整体,然后全屋出图。但是也有着重出图的情况。有些业主比较仔细,需要整个房子每个角落都出,还有一种,就是把重点地方的效果图做出来,听着和第一种很像,但是这种更具有连贯性。
那接下来我们来说一下第二种情况,也是我想要给大家重点说的部分。
房子装修时,设计师需要给业主提供哪些服务?
1.确定业主需求,实地量房。
一般情况下,一个小区拿房后,设计公司会拿到这个小区的建筑图纸。如果不能,公司也会指派相应的人员去对这个小区的所有户型做一个户型整理。保证在约定业主来公司面谈之前,设计师能够通过助理或者其他途径去了解业主家的基本需求,比如说以后居住的成员、主要居住成员喜爱的设计风格,以及业主希望装修后达到的装修效果。当然这个时候了解的还只是表面。也是单方面的信息输入,后面还会有更加深入的相互沟通。也就是说即使业主是第一次来装饰公司,设计师也不会毫无准备。至少会有一张你家的平面图和原始建筑图纸出现在你面前。另外还会有很多的意向图片,让你更加明确各种装修风格的区别,让你更加坚定或者更改一开始自己最初的想法。这里也适用于那些对装修一点不懂的业主,设计师会在第一次见面,做一定的简单的行业介绍,让业主能够更加清晰的了解装修。
这些工作都相当于一个背景,都是为接下来的工作做准备的。正式装修之前肯定设计师要进行第二次实地量房。这次是特别针对业主家里的量房,这才是有针对的设计的开始。
2.依据业主需求,确定属于业主家独一无二的设计方案——方案汇报PPT
通过之前的沟通,设计师会提供给业主一份更加详细和适合业主的方案汇报PPT。这里面会包含设计师的设计构思,设计理念,设计说明、本次设计的设计元素,以及色彩搭配。很多业主可能觉得这些不重要,但这却是你家与众不同的根源,也是你最该付钱的地方。不过前提是设计师真的有很用心的去做这部分内容,而不是照搬照抄。

当然这份PPT里肯定会包括业主家的平面布置图,顶面布置图,还有一些重要空间的立面,有手绘功底的设计师还会通过手绘的形式来帮助业主理解。另外也会有个大概的报价表出来,因为装修效果固然重要,但是价格也是不得不考虑的一个重要因素。
3.依据业主需求,给业主呈现专属的设计效果——效果图/报价
(1)效果图

完成前面的这些工作,设计师就可以给业主家制定效果图了。效果图是一种非常直观的表现形式,业主可以通过效果图来直观感受到以后的新家到底是什么样子。而且如果施工靠谱的话,实际出来的效果只会比效果图更好,因为实物的质感更容易让人感同身受。
这个阶段对于设计师来说,整个家里的所有细节都印在脑中了,接下来要做的就是努力帮业主实现的步骤了,因为还有一个实际问题,那就是后期真正选主材的时候,从市场上不一定能买到和效果图一模一样的家具、电器等等。但是你要相信,一个靠谱的设计师后期真正给你选出来的实物一定是比效果图更具有美感的,因为效果图模型可能会过时,但是市场和一个好的设计师的眼光永远不会。
(2)报价表
对于我们普通老百姓来说,报价是不得不考虑的重要因素之一,很多业主甚至会为了节省资金,被迫降低自己的需求,所以,用更少的钱做出让业主更满意的设计方案也是设计师的必修课。这个时候设计师要给业主提供非常准确的报价,如果是大全包,那整个装修的所有费用都应该体现出来。这要建立在设计师不故意漏项的情况下。

3.依据业主需求,让项目经理和施工师傅了解你的设计——施工图
到这里没有问题。那基本方案这块就快结束了。也意味着设计师的方案设计阶段的基本完成,当然也不排除业主在这个阶段更改设计方案,当然我认为这更多的体现了设计师在前期方案阶段的工作量,是否真的做出了让业主真心觉得称心如意的作品。
接下来是施工阶段。施工阶段的重点当然是施工图。施工图顾名思义就是可以让施工工人施工的图纸。很多人会说现在的工人根本就不会去很详细看,我想说那是因为你的设计没有特别之处啊,工人完全可以凭借自己的工作经验把设计师要求的效果做出来,那他们为什么还要很详细的去看?
施工图是一个让自己的想法在实际生活上完美呈现的过程,这个属性决定了施工图必须非常详细、准确。
施工图包含的图纸也非常多,可分为平面部分、立面部分和节点部分
(1)平面部分:封面、目录、设计施工说明、施工材料表、建筑资料平面图、新建墙体图(这张图纸里面会墙体拆除图,方面施工对比)、平面布置图、家具尺寸图、天花布置图、天花尺寸定位图、灯具定位图、地坪布置图、机电布置图、开关布置连线图、立面索引图


(2)立面部分:主要是墙面部分的表现。基本上拿到立面图就能够看清业主家所有地方的墙面造型。包括柜子。门样式、窗户大小等等。

(3)节点部分:可分为天花节点大样图、墙身节点大样图、地坪节点大样图、固装节点大样图。

4.依据业主需求,让设计方案和实际联系起来——物料表
如果说效果图是让你的家直观的展现出来,那么物料表就是让这个直观的画面可以摸出来。

这么重要的东西可能很多人都表示没有听说过这个名字,那是因为很多设计师都会偷懒,因为这是一个非常强大的表,他涉及到的工作量也非常大。那他到底是什么呢?他其实就是你家装修所用到的材料的全部汇总,它包含硬装、软装、灯具、甚至配饰。包括这些材料的样式、纹理、品牌、规格、型号,甚至是厂家的联系电话等等。基本上业主拿着这份清单,就可以去市场上看到自己家装修所用到的所有材料。在没有装修之前就能感受到家里所有材料的质量。
以上是设计师需要给业主提供的直观资料,实际上设计师的工作远不止这些。还有一些没有纸质衡量的工作量,比如大家都知道的各个工种进场前的施工交底、以及装修重要节点结束后的现场验收,还有主材选购等。涉及到造型比较复杂的结构,设计师可能还需要去现场承担指导工人作业的任务。
总之,设计师是每个环节的桥梁,就像拍电影时的总导演。一个好的作品的呈现必然和涉及到这个作品的每个人息息相关,它包含业主对设计师的信任,项目经理对设计方案的绝对尊重,以及工人对自己工艺的精湛掌握。一个好的设计方案,就像一个生命的孕育,它必须要付出足够多的精力和用心,一份耕耘一份收获。让我们一起为一所房子、一个家、一个家庭的幸福未来去努力。共勉!